316.900€
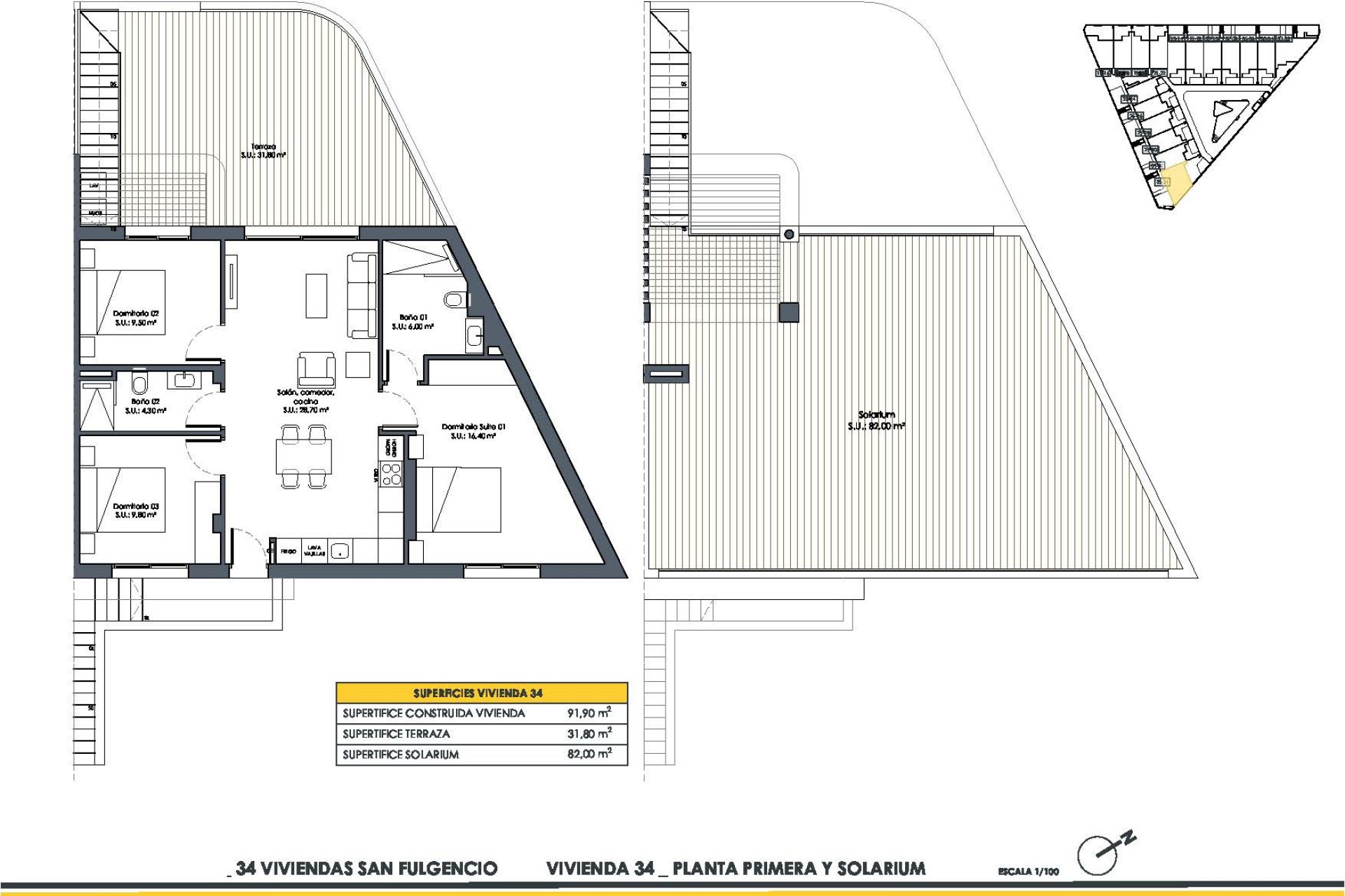
Ubicado en el encantador municipio de San Fulgencio, este conjunto residencial ofrece una selección de 12 bungalows, divididos en dos tipologías: bungalows con solarium y bungalows con jardín. Este entorno residencial se encuentra a tan solo 34 km del aeropuerto, lo que facilita el acceso para quienes viajan con frecuencia. La ubicación estratégica de San Fulgencio proporciona un ambiente tranquilo y acogedor, ideal para quienes buscan un hogar en una zona apacible pero bien conectada.
EXTERIORES
Los exteriores de estas propiedades están diseñados para maximizar el disfrute del clima mediterráneo. Cada bungalow cuenta con un jardín privado, perfecto para crear un espacio verde personal o para disfrutar de momentos al aire libre. Además, las terrazas ofrecen un lugar ideal para relajarse, cenar al aire libre o simplemente disfrutar de las vistas. La presencia de un solárium en cada propiedad añade un toque especial, permitiendo a los residentes aprovechar al máximo el sol durante todo el año. La inclusión de pérgolas proporciona sombra y estilo, convirtiendo los espacios exteriores en áreas versátiles y acogedoras.
INTERIORES
El interior de los bungalows está cuidadosamente diseñado para ofrecer confort y funcionalidad. Las opciones de distribución incluyen dos o tres dormitorios, adaptándose a las necesidades de diferentes familias. Cada bungalow dispone de dos baños, asegurando comodidad para todos los residentes. Los suelos de gres porcelánico aportan un toque moderno y son fáciles de mantener. Las persianas eléctricas y los armarios empotrados son características estándar que mejoran la funcionalidad y el confort del hogar. Además, la preinstalación de aire acondicionado permite a los propietarios personalizar el clima interior según sus preferencias.
ZONAS COMUNES
Las zonas comunes del residencial están diseñadas para fomentar un sentido de comunidad y ofrecer espacios de recreo y relajación. Los jardines comunitarios proporcionan un entorno verde y agradable para pasear o descansar. La piscina comunitaria es un punto central del complejo, ideal para refrescarse durante los cálidos días de verano y socializar con los vecinos.
SAN FULGENCIO
San Fulgencio, en la Costa Blanca, es un pueblo tranquilo rodeado de campos agrícolas y cercano a zonas turísticas populares. Aunque no sea un destino turístico prominente, su encanto radica en su ambiente rural y su proximidad a la costa. El turismo en San Fulgencio se enfoca en su entorno rural y su proximidad a playas cercanas como La Marina y Guardamar del Segura, que atraen a quienes buscan disfrutar del sol y el mar mediterráneo. El estilo de vida en San Fulgencio es apacible y arraigado en la vida rural. Los residentes valoran la tranquilidad, la convivencia comunitaria y las tradiciones locales. La gastronomía se basa en platos típicos mediterráneos y productos locales frescos. San Fulgencio ofrece un ambiente sereno y rural para aquellos que buscan una vida tranquila en un entorno natural, cercano a destinos turísticos costeros en la Costa Blanca.